Garden Flat, Elgin Avenue, Maida Vale, London W9 2NS (Available Soon) |
|||
|
|||
Property type:
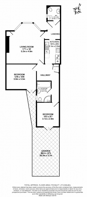
2 bedroom flat (click here to view the floorplan)
A very spacious two double bedroom flat with own entrance situated on the lower ground floor of this period property in the heart of Maida Vale and located within a short walk to Maida Vale and Warwick Avenue underground stations and other local amenities. The flat comprises a large living room, fully fitted kitchen, two double bedrooms, bathroom/WC, separate guest WC and an exceptionally large private garden. |
|||
